Oootopia
Fully Furnished/ Serviced Apartments near Kennedy Town.
No commission is required, contact us now for an exclusive offer/ service for free.
Oootopia Building Information:
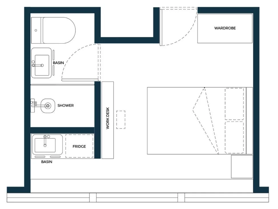
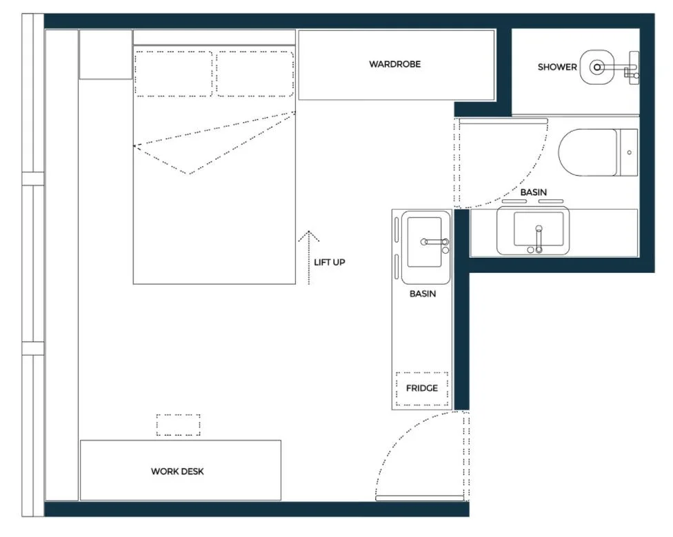
Conveniently located near The Belcher's 寶翠園 , 2-min & 10-min away from HKU MTR Station & Kennedy Town MTR Station respectively. All units are fully furnished studio apartments from 120 – 200 sq. ft. and rental range from HK$10,000 - $20,000.
In-Room Provisions
Bed / Private bathroom / Closet & storage / Desk / Mini fridge / Air conditioner / Blackout curtains / Reading Light / Safe deposit box / Smart touch-pad door locks / Free high-speed WiFi / Pillows & linens / Hair dryer / Kettle / Cups & saucer / Resident app
Welcome Kit
Amenity pouch / Toiletries / Bedsheets / Towel / Laundry bag / Slippers / Tumbler / T-shirt / Pen / Ro bag
3-16/F Urban Studio
3-16/F Premier Studio
17-20/F Grand Suite
17-20/F Sky Suite
Oootopia
To rent a fully furnished apartment
Buildings nearby
KtownProp Blogs
